Aktualności

Wszystkie aktualności

Nowe tereny rekreacyjne w Boguchwale

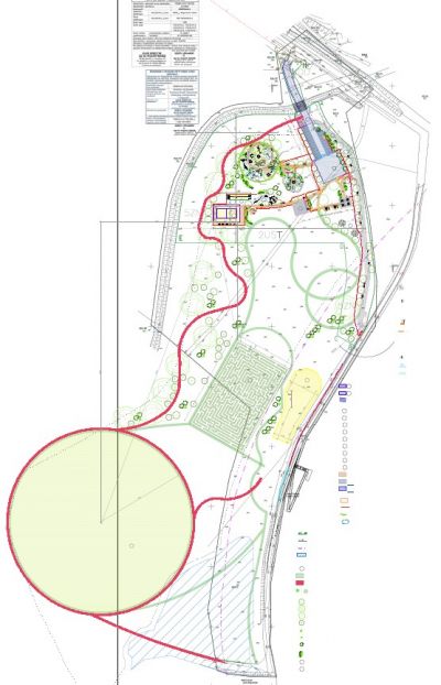
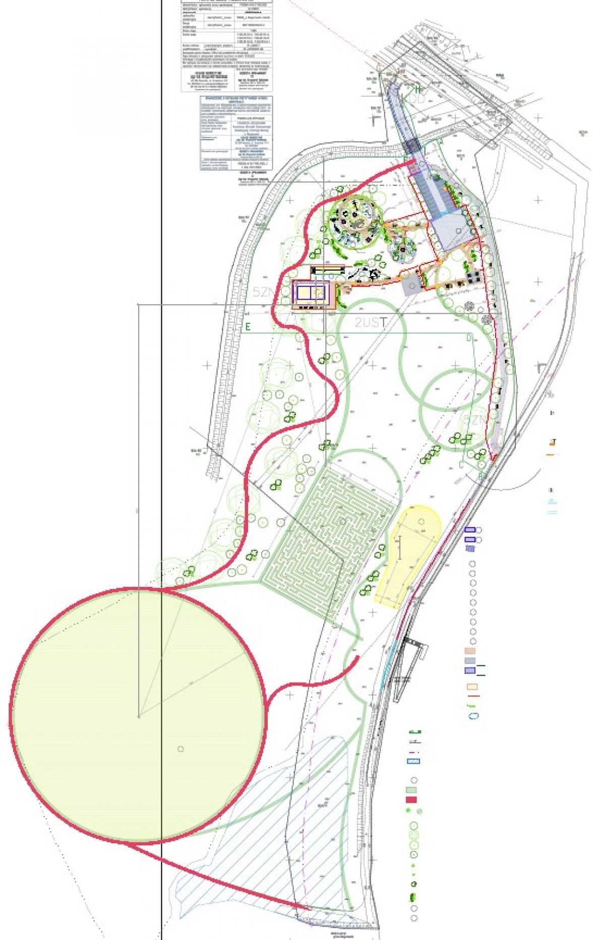
W Boguchwale powstaje nowoczesny kompleks rekreacyjno–wypoczynkowy w ramach zadania „Podnoszenie jakości zasobów turystycznych Gminy Boguchwała”. Inwestycja obejmuje budowę placu zabaw, siłowni plenerowej, toru przeszkód, ścieżek pieszo–rowerowych, boiska do siatkówki plażowej oraz wiaty piknikowej z zapleczem gospodarczym. Całość uzupełnią elementy małej architektury – ławki, kosze, stojaki na rowery, leżaki miejskie czy siedziska wokół drzew – a także kontener sanitarny i stacja meteorologiczna.

Na terenie obiektu powstanie również parking na 20 samochodów wraz z placem manewrowym i ciągiem pieszo–jezdnym. Ważnym elementem inwestycji będzie także budowa nowoczesnego oświetlenia oraz systemu monitoringu, co zapewni bezpieczeństwo korzystającym z przestrzeni mieszkańcom i turystom.

Projekt przewiduje również szerokie nasadzenia zieleni – zarówno niskiej, jak i wysokiej – które podkreślą rekreacyjny charakter miejsca. Wokół placu zabaw zaplanowano ogrodzenie w formie zieleni, a całość zostanie uzupełniona nowymi trawnikami.

Wartość robót budowlanych związanych z realizacją całego przedsięwzięcia to ponad 2 mln zł. Pierwsze prace rozpoczną się bezpośrednio po podpisaniu umów i będą prowadzone etapowo. Zakończenie inwestycji planowane jest na koniec 2025 roku.

Pełna dokumentacja projektowa wraz z przedmiarami dostępna jest na stronie:
 ezamowienia.gov.pl(ogłoszenie nr 2025/BZP 00133019/01 z dnia 5 marca 2025 r.)

Realizacja tego projektu sprawi, że mieszkańcy Boguchwały i okolic zyskają atrakcyjne miejsce do rekreacji, aktywnego wypoczynku i integracji społecznej, które będzie służyło zarówno dzieciom, młodzieży, jak i dorosłym.